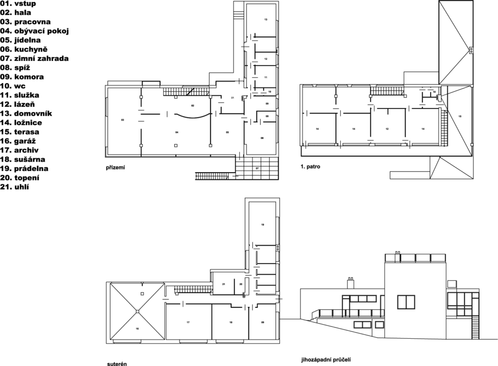
Dům Antonie Sukové a Václava Suka

Největší vilový dům výstavní osady Baba si postavil úspěšný stavební podnikatel Václav Suk podle návrhu talentované architektky a designérky ze třídy Pavla Janáka na pražské UMPRUM Hany Kučerové-Záveské. Ta tímto uvedla do českého prostředí inspiraci slavnou Le Corbusierovou vilou Stein v Garches u Paříže, a to především schodišťovou halou domu, která umožňovala samostatný vstup do pracovny pána. Navrhla též interiéry domu včetně minimalistického nábytku. Koncem třicátých let přibyl keramický obklad průčelí a v polovině šedesátých let přístavba kvůli rozdělení vily na dvě bytové jednotky.

Architekt

Hana Kučerová-Záveská

(*1904 Praha +1944 Stockholm)

Architektka, publicistka a progresivní návrhářka nábytku a interiérů, žákyně Pavla Janáka na Uměleckoprůmyslové škole. Jako členka SČSD se hlásí se k programu moderní architektury: účelnost půdorysu, nábytek jednoduchý, pohodlný a cenově přístupný, osvobození ženy od zbytečných prací v domácnosti. Začala úspěšně spolupracovat s družstvem Artěl a s nábytkářskou firmou Spojené uměleckoprůmyslové závody (UP) v Brně. Její nábytek pro Barrandovské terasy (1929) byl později řadu let vyráběn sériově. Architektonické realizace stihla za života jen dvě-dům Balling a dům Suk, oba na pražské Babě. Zemřela ve čtyřiceti letech ve Stockholmu, kde žila se svým mužem, československým velvyslancem Dr. Vladimírem Kučerou.

1922-1927
studium architektury na Uměleckoprůmyslové škole v Praze u prof. Karla Štípla, prof. Josefa Mařatky a prof. Pavla Janáka
1928-1937
samostatná architektka a designérka v Praze
1937 
architektka ve Stockholmu, kde byl její manžel Jaroslav Kučera velvyslancem

Významné realizce
 
1928
terasy restaurace na Barrandově, Praha

1932 rodinný dům Karla Ballinga, rodinný dům Antonie a Václava Sukových, Baba, Praha-Dejvice

standardní typová kuchyně pro Zenobii Vítězovou, Přerov
řada bytových zařízení a realizací pro soukromé klienty
1933
účast na výstavě Svazu československého díla  (SČSD) „Byt” v Praze
1934
rodinný dům, Dobřichovice

Majitel

Antonie Suková a Václav Suk

Václav Suk, který se ženou vlastnil také secesní činžovní dům na Hradčanech, se stal v padesátých letech obětí komunistické perzekuce a krátce na to umírá ve vězení.