Dům Jiřího Paličky a Emílie Paličkové

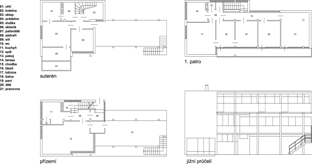
Rodinný dům jediného zahraničního architekta, holandského avantgardisty Marta Stama pro stavebního inženýra Jiřího Paličku a jeho ženu, textilní výtvarnici a krajkářku Emílii, je na první pohled odlišný svou podélnou prostorovou koncepcí. Posazení domu v prudkém svahu působí díky subtilní železobetonové konstrukci se sloupky v jižním průčelí vzdušně a tento dojem umocňuje i polootevřený prostor terasy nikoli na střeše, ale v přízemí. Ta je zakryta patrovou „markýzou” průběžného ložnicového patra. Na druhou stranu lehkost a vzdušnost Stamova návrhu nebyla až tolik v souladu s podmínkami pražského klimatu. Minimalistický interiér byl dílem Ladislava Žáka. Rekonstrukce domu včetně chodníku a oplocení byly díky současnému majiteli realizovány citlivě podle návrhu arch. Ladislava Lábuse. Dům Palička je tak skvělým příkladem, jak vrátit Babě její původní jedinečný ráz.

Architekt

Mart Stam

(*1899 Purmerend, Holandsko +1986 Goldach, Švýcarsko)

Holandský architekt-autodidakt, urbanista a návrhář nábytku, jeden ze zakladatelů mezinárodního ideového spolku C.I.A.M., působil v ateliérech Hanse Poelziga a Bruno Tauta, byl ředitelem Školy průmyslového designu v Amsterodamu, poté rektorem Akademie výtvarných umění v Drážďanech, dále ředitelem Institutu umění v Berlíně. Byl jediným zahraničním architektem na pražské Babě, kde vyprojektoval vilu pro stavitele Paličku a jeho ženu Emílii, jimž učarovala jeho tvorba na výstavě ve Stuttgartu 1927. Ikonické je jeho jídelní křeslo pro firmu Thonet.

1917-1919
studium na Královské škole výtvarných umění v Amsterdamu
1919
práce v kanceláři architektů Marinuse Jana Grandprého Moliéra, Pietera Verhagena a Alberta J.T. Koka v Rotterdamu
1920-1922
vězněn za odepření vojenské služby
1922
práce na regulačním plánu města Haagu
odchod do Berlína, spolupráce s Maxem Tautem a s El Lissitzkym
1923
spoluzakladatel architektonického magazínu ABC v Curychu
1923-1924
práce v kanceláři Karla Mosera v Curychu
1925-1928
člen holandské skupiny architektů De 8 později De 8 en Opbouw
1926-1927
práce v kanceláři Brinkman a Van der Vlugt v Rotterdamu 1927
1928-1930
práce ve Frankfurtu nad Mohanem na projektech bydlení pro „Nový Frankfurt“
1931-1934
architekt a urbanista v Sovětském svazu v pracovní skupině Ernsta Maye (urbanistické projekty)
1935-1948
samostatný architekt v Amsterdamu
1939-1948
ředitel Školy uměleckých řemesel v Amsterdamu
1948-1952
profesor Akademie výtvarných umění v Drážďanech
1950-1952
ředitelem Vysoké školy uměleckoprůmyslové v Berlíně-Weissensee
1953
návrat do Amsterdamu
1966
přesídlení do Švýcarska

Významné realizace
 
1926
křeslo z ocelových trubek
1926-30
Van Nelle Factory Rotterdam (ve spolupráci s kanceláří Brinkman a Van der Vlugt)
1927
trojdům, sídliště Weissenhof, Stuttgart
1929-1932
sídliště Hellerhof, Frankfurt

1932 rodinný dům Emilie a Jiřího Paličkových, Baba, Praha-Dejvice (spolupráce s Jiřím Paličkou)

1935
řadové domy, Amsterdam

Majitel

Jiří Palička a Emílie Paličková

Emílie Paličková získala v rámci prezentace Svazu československého díla na Mezinárodní výstavě dekorativních umění v Paříži 1925 cenu Grand Prix. Stavitel Jiří Palička měl v domě svou kancelář, jejíž realizací byla také legendární vila herečky Lídy Baarové a její rodiny na nedaleké Hanspaulce. Architekt Ladislav Žák ji navrhl v duchu zaoceánské lodi a její původní půvab jí navrátil opět architektonický atelier Ladislava Lábuse.