Oproti zvyklostem u všech ostatních výstavních rodinných domů na Babě, situoval Josef Gočár obytný prostor domu přednosty referátu Ministerstva školství a národní osvěty Václava Mauleho do zvýšeného přízemí a velký obývací pokoj a ložnice do patra. Nabídl tak obyvatelům vily atraktivnější výhled na pražské panorama z protáhlého společenského prostoru lemovaného průběžným oknem. Dům patří ke čtveřici těch komfortnějších vil na Babě a je charakteristický i pro Gočárovi vlastní stylovou eleganci.
Architekt, profesor, urbanista (Hradec Králové a Pardubice), návrhář nábytku a předmětů denní potřeby. Josef Gočár byl všeobecně respektovaná osobnost české architektury, ovlivnil řadu svých studentů a generace dalších architektů. V jeho tvorbě najdeme jak český světový unikát-kubismus v architektuře (ikonický Dům U Černé Matky Boží) dále rondokubismus (Legiobanka Na poříčí), tak vliv konstruktivismu, nebo naopak stavby v národním či art deco stylu. Vrchol jeho profesního života se pojí s funkcionalismem, ať to byly vily na Babě (Maule, Kytlica, Glücklich), nebo kostel sv. Václava ve Vršovicích. Roku 1925 získal za návrh čs. pavilonu na mezinárodní výstavě v Paříži Velkou cenu a v roce 1926 řád francouzské Čestné legie.
1902-1905
studium architektury u prof. Jana Kotěry na Uměleckoprůmyslové škole v Praze
1905-1908
spolupráce s kanceláří prof. Jana Kotěry v Praze
1906
několikaměsíční pobyt v Londýně při dozoru české instalace průmyslové výstavy
1908-1945
samostatný architekt v Praze
1908
člen SVU Mánes
1911
spoluzakladatel kubistické Skupiny umělců výtvarných
1912
spoluzakladatel Pražských uměleckých dílen (PUD)
1913-1914
členem Svazu českého díla (SČD)
1916-1919
vojenská služba
1920-1924
Předseda Svazu československého díla (SČSD)
1924
profesor Akademie výtvarných umění v Praze
1927
člen České akademie věd a umění
1928-1931
rektor Akademie výtvarných umění v Praze
1934
korespondující člen Královské společnosti britských architektů (RIBA)
Významné realizace
1909
Wenkeův dům, Jaroměř
1910
Jaruškův dům, Brno
1911-1913
dům U Černé matky Boží, Praha-Staré Město
1912-13
lázeňský dům, Bohdaneč
1920
československý pavilon pro veletrh, Lyon
1922-23
Legiobanka, Praha-Nové Město
1922-24
Masarykovo náměstí, Hradec Králové
1924-25
regulační plán, Hradce Králové
1924-1927
areál školních budov, Hradec Králové
1925
československý pavilon na Mezinárodní výstavě dekorativních umění a moderního průmyslového designu, Paříž
Dům zemědělské osvěty, Praha-Vinohrady
1928-1930
kostel sv.Václava , Praha-Vršovice
1932
ředitelství drah, Hradec Králové
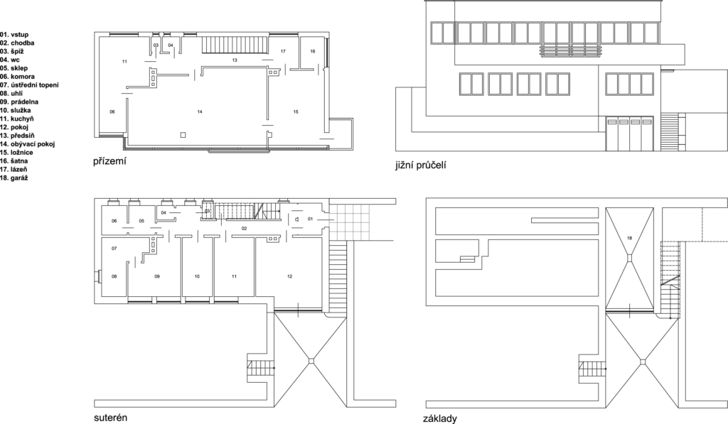
1932 rodinný dům Václava a Jarmily Maulových, Baba, Praha-Dejvice
1933-1936
rodinný dům Karla Kytlici, rodinný dům Marie a Stanislava Mojížš-Lomových, rodinný dům Julia Glücklicha, Baba, Praha-Dejvice
1934
Finanční úřad a Okresní úřad, Hradec Králové
vila Otakara Meda, Humpolec

PhDr. Václav Stanislav Maule (1884-1945) byl od roku 1937 vedoucím odboru vysokých škol, přeložil Brehmovy spisy Život zvířat a knihu Mezi lovci perel a lebek od Franka Hurleyho, přispíval mj. Také do Věstníku Královské české společnosti nauk. Byl členem výstavního výboru Svazu čsl. díla a aktivně se podílel na organizaci výstavy osady Baba. V roce 1944 byl odvlečen do koncentračního tábora v Terezíně. Ke své ženě Jarmile do domu na Babě se vrátil v květnu 1945, kde záhy umírá na tyfus.