Dům Emanuela Lisého a Marie Lisé

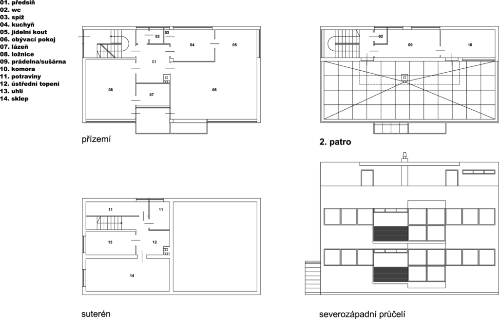
Podobně jako Vaváčkova sousední vila od Oldřicha Starého, opakují Antonín Heythum a Evžen Linhart i v případě rodinného domu pro Emanuela Lisého shodná patra pro dvě rodiny zakončené velkou sluneční terasou. Právě Lisého dům vynikl v sérii domů se dvěma byty díky  propojení obytné místnosti s lodžií, zimní zahradou a ložnicí. Oba architekti nacházeli inspiraci v bílých vilách od Le Corbusiera. 

Architekti

Evžen Linhart

(*1898 Kouřim +1949 Praha)

Architekt a návrhář nábytku, žák Antonína Engela na ČVUT.  Jeho tvorba vychází z purismu (spoluzakladatel Puristická čtyřky Devětsilu) a české moderny, která byla jasnou protiváhou dobově populárnímu dekorativismu. Pod vlivem díla Le Corbusiera se později stává představitelem funkcionalismu. Byl členem ARDEV i Spolku výtvarných umělců Mánes. Ve svých návrzích, z většiny bohužel nerealizovaných, propojuje neobyčejně výtvarnou dispoziční nápaditost a konstrukční čistotu s citem pro detail. Společně s Antonínem Heythumem navrhl dům rodiny Lisých na Babě. 

1918-1924
stdium architektury na ČVUT v Praze u prof. Rudolfa Kříženeckého a prof. Antonína Engela
1924-1945
zaměstnán na stavebním úřadě Magistrátu hl.m.Prahy
1946-49
ředitel odboru výstav na Ministerstvu informací

Významné realizace

1924-25
obytný blok, Praha-Žižkov
1925
obytný blok, Praha-Hostivař
1927-1929
vlastní vila, Praha-Dejvice

1932 rodinný dům Marie a Emanuela Lisých, Baba, Praha-Dejvice (spolupráce s Antonínem Heythumem)

1938
obytný dům, Praha-Dejvice
1946-58
kolektivní dům Stalinových chemických závodů, Horní Litvínov (spolupráce s Václavem Hilským) 1947
československá expozice na Triennale di Milano, Milán

Antonín Heythum

(*1901 Most +1954 Rottach, Bavorsko)

Scénograf, grafik, architekt a návrhář nábytku. Účastnil se počátků Osvobozeného divadla jako scénograf. Krátce pracoval v pařížském ateliéru Le Corbusiera, roku 1936 získal na milánském Triennale zlatou medaili v kategorii Divadelní výprava. Roku 1938 odjel do USA, připravit československý pavilon pro světovou výstavu v New Yorku a na výstavu v San Francisku. V USA už zůstal a jako profesor vyučoval na univerzitách. Vycházel z kubismu, ale postupně směřoval k jednoduchosti a víceúčelovosti funkcionalismu. Byl především průkopníkem divadelního konstruktivismu. V nábytkářství byl zastáncem standardního funkcionalistického designu pro sériovou výrobu. Je spoluautorem díla Design for Use z roku 1944. Na Babě navrhl společně s Evženem Linhartem dům Lisý.

1920-1924
studium architektury na ČVUT v Praze
1924-1939
architekt, designer a scénograf v Praze
1939
emigrace do USA
1940-1941
vyučoval na New School for Social Research v New Yorku
1941-1946
vyučoval na California Institute of Technology
1946-1950
vyučoval na Syracuse University

Nejvýznamnější realizace


1924-1938
scénické návrhy pro přední česká divadla

1932 rodinný dům Marie a Emanuela Lisých (spolupráce s Evženem Linhartem), Baba, Praha-Dejvice

1935
Československý pavilon na Světové výstavě, Brusel

Majitel

Emanuel Lisý a Marie Lisá

Manželé Emanuel a Marie Lisých se s dcerou nastěhovali do vily v roce 1932, kdy byl Emanuel Lisý zaměstnán jako redaktor Československého rozhlasu.