Oproti zvyklostem u všech ostatních výstavních rodinných domů na Babě, situoval Josef Gočár obytný prostor domu přednosty referátu Ministerstva školství a národní osvěty Václava Mauleho do zvýšeného přízemí a velký obývací pokoj a ložnice do patra. Nabídl tak obyvatelům vily atraktivnější výhled na pražské panorama z protáhlého společenského prostoru lemovaného průběžným oknem. Dům patří ke čtveřici těch komfortnějších vil na Babě a je charakteristický i pro Gočárovi vlastní stylovou eleganci.
PhDr. Václav Stanislav Maule
PhDr. Václav Stanislav Maule (1884-1945) byl od roku 1937 vedoucím odboru vysokých škol, přeložil Brehmovy spisy Život zvířat a knihu Mezi lovci perel a lebek od Franka Hurleyho, přispíval mj. Také do Věstníku Královské české společnosti nauk. Byl členem výstavního výboru Svazu čsl. díla a aktivně se podílel na organizaci výstavy osady Baba. V roce 1944 byl odvlečen do koncentračního tábora v Terezíně. Ke své ženě Jarmile do domu na Babě se vrátil v květnu 1945, kde záhy umírá na tyfus.
ulice Nad Paťankou, dům Maule v popředí
Jarmila Mauleová v domě na Babě, 30. léta
ulice Nad Paťankou (zprava) dům Janák a dům Maule (vlevo)
Josef Gočár
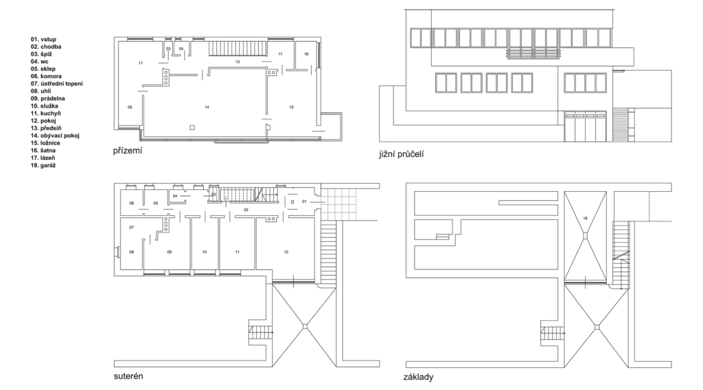
titulní strana z původní stavební dokumentace
původní dokumentace a plán z výstavního katalogu, 1932