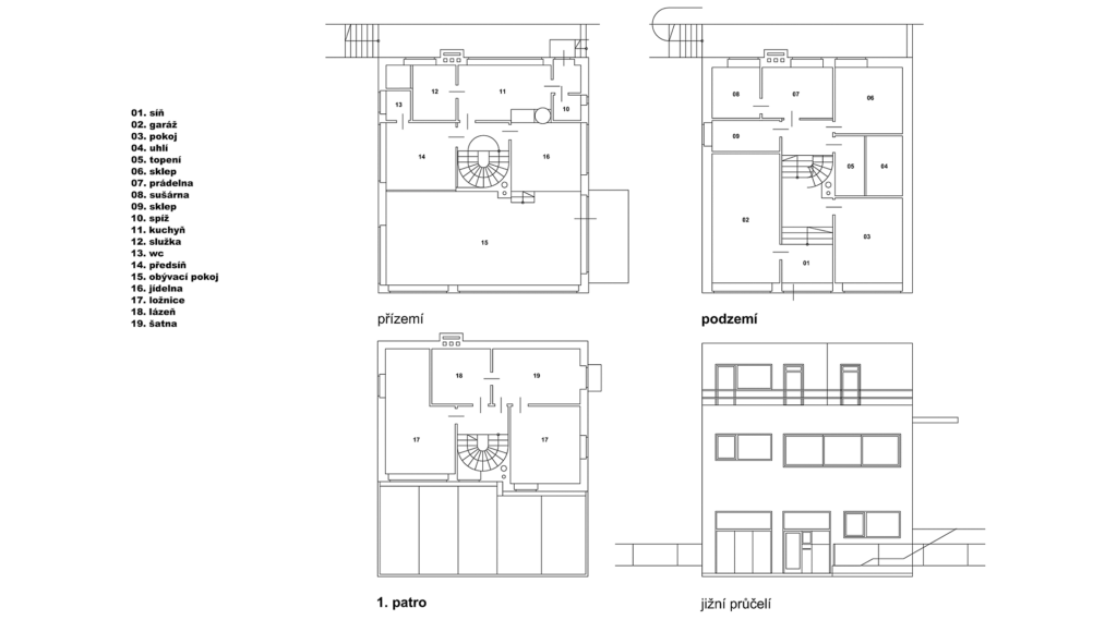
V návrhu své vlastní vily realizoval dokonalý terasově stupňovitý kubus s vřetenovým schodištěm uprostřed, silně inspirovaný prostorovým plánem architekta Adolfa Loose. Ale do dokonalosti konceptu a vize se někdy vloudí praktická chyba, takže perličkou Janákovy vily byl fakt, že u věhlasného funkcionalistického architekta v jeho vlastním domě nešlo otevřít okno kvůli umístění trubek topení. Paní Janáková vilu po smrti svého manžela v roce 1956 záhy prodala. V sedmdesátých letech byla nevhodně přistavěna garáž. V současnosti je dům po rekonstrukci.
Pavel Janák
Významný architekt, urbanista, člen Státní regulační komise, profesor na Uměleckoprůmyslové škole v Praze, spoluzakladatel sdružení Artěl, hlavní architekt Pražského hradu, autor bohaté publikační činnosti a jeden z čelních představitelů českého Werkbundu. Pavel Janák (1882-1956) stál v čele Svazu československého díla ve druhé polovině dvacátých let, kdy se stal hlavním iniciátorem funkcionalistické výstavby na Babě a zároveň autorem její urbanistické studie.
ulice Nad Paťankou (zprava) dům Janák a dům Maule (vlevo)
průhled přes Janákův dům (severní průčelí) na Prahu a Hradčany
prof. Janák diskutuje se studenty UMPRUM nad modelem osady Baba, 30. léta
Pavel Janák (vlevo) na pozemku budoucí osady Baba, 1931
oslava 60. narozenin Pavla Janáka, 1942
dům Janák (východní průčelí) v pozadí s řadou domů Balling, Heřman, Palička
Pavel Janák
titulní strana z původní stavební dokumentace
původní dokumentace a plán z výstavního katalogu, 1932