Rodinný dům jediného zahraničního architekta, holandského avantgardisty Marta Stama pro stavebního inženýra Jiřího Paličku a jeho ženu, textilní výtvarnici a krajkářku Emílii, je na první pohled odlišný svou podélnou prostorovou koncepcí. Posazení domu v prudkém svahu působí díky subtilní železobetonové konstrukci se sloupky v jižním průčelí vzdušně a tento dojem umocňuje i polootevřený prostor terasy nikoli na střeše, ale v přízemí. Ta je zakryta patrovou „markýzou” průběžného ložnicového patra. Na druhou stranu lehkost a vzdušnost Stamova návrhu nebyla až tolik v souladu s podmínkami pražského klimatu. Minimalistický interiér byl dílem Ladislava Žáka. Rekonstrukce domu včetně chodníku a oplocení byly díky současnému majiteli realizovány citlivě podle návrhu arch. Ladislava Lábuse. Dům Palička je tak skvělým příkladem, jak vrátit Babě její původní jedinečný ráz.
Jiří Palička a Emílie Paličková
Emílie Paličková získala v rámci prezentace Svazu československého díla na Mezinárodní výstavě dekorativních umění v Paříži 1925 cenu Grand Prix. Stavitel Jiří Palička měl v domě svou kancelář, jejíž realizací byla také legendární vila herečky Lídy Baarové a její rodiny na nedaleké Hanspaulce. Architekt Ladislav Žák ji navrhl v duchu zaoceánské lodi a její původní půvab jí navrátil opět architektonický atelier Ladislava Lábuse.
Ikonická perspektiva domu od Marta Stama, publikovaná v holandském časopise Opbouw
současný interiér - vstupní chodba
současný interiér - kuchyně
současný interiér - 1. podlaží
současný interiér - schodiště
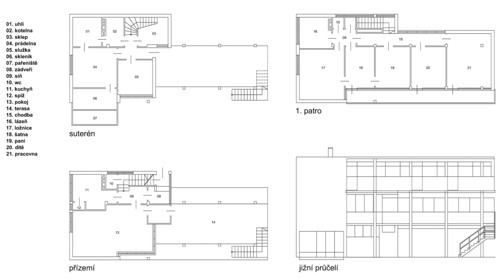
plán vily ze stavební dokumentace, 1971
Mart Stam
titulní strana z původní stavební dokumentace
původní dokumentace a plán z výstavního katalogu, 1932