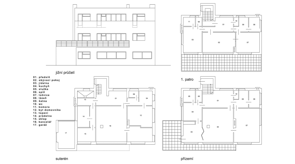
Pavel Janák navrhl pro svého přítele, velkého podporovatele funkcionalismu, Karla Dovolila a jeho rodiče dvougenerační rodinný dům. Skvěle využil spád terénu k umístění zázemí domu, investorovy kanceláře a malého bytu pro domovníka. Střecha oddělené garáže je zároveň terasou navazující na balkon pokoje. Tuto terasu pomocí ocelového schodiště propojil se zahradou. Uliční průčelí má na rozdíl od ostatních domů okna.
Karel Dovolil
V roce 1932 se ing. Karel Dovolil (1899-1955) nastěhoval do svého domu s manželkou Jarmilou a první dcerou Jarmilou. Paní Jarmila byla ženou na tehdejší dobu odvážnou a akční. Funkcionalistické okno do kuchyně se jí zdálo světelně nedostačující, a tak se navzdory Janákovu návrhu domluvila s řemeslníky na zvětšení okna, čímž překvapila po návratu z práce i svého muže. Věhlasného architekta se toto praktické ženské rozhodnutí velmi dotklo. V protektorátu musel Karel Dovolil podobně jako další obyvatelé vil židovského původu čelit nejen šikaně ze strany nechvalně proslulého obyvatele Baby, českého nacisty Bautze, ale musel uzavřít i svou inženýrskou kancelář. Až do znárodnění pracoval u svého švagra v jeho papírenské firmě. V svém podnikání pokračovat nadále nesměl. Pracoval jako vodohospodář ve VODOTECHNĚ až do své náhlé smrti. Dcera Jarmila se svou sestrou Hanou stále obývají tento jedinečný dvougenerační dům na Babě.
dcera Jarmila bruslí na zahradě domu na Babě, 30. léta
Jarmila Dovolilová, 30. léta
manželé Karel a Jarmila Dovolilovi s dcerami Jarmilou a Hanou, 1940
Jarmila Dovolilová s dcerami (v bílém) po osvobození 1945