Dům č.13 Suk původní stav (jižní průčelí se schodištěm do zahrady)
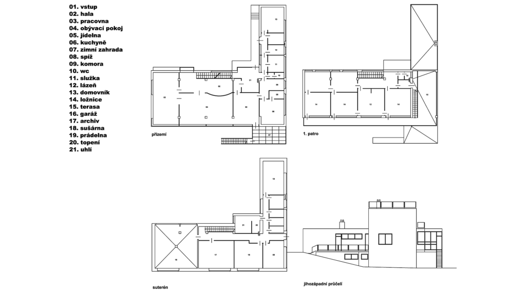
Největší vilový dům výstavní osady Baba si postavil úspěšný stavební podnikatel Václav Suk podle návrhu talentované architektky a designérky ze třídy Pavla Janáka na pražské UMPRUM Hany Kučerové-Záveské. Ta tímto uvedla do českého prostředí inspiraci slavnou Le Corbusierovou vilou Stein v Garches u Paříže, a to především schodišťovou halou domu, která umožňovala samostatný vstup do pracovny pána. Navrhla též interiéry domu včetně minimalistického nábytku. Koncem třicátých let přibyl keramický obklad průčelí a v polovině šedesátých let přístavba kvůli rozdělení vily na dvě bytové jednotky.
Antonie Suková a Václav Suk
Václav Suk, který se ženou vlastnil také secesní činžovní dům na Hradčanech, se stal v padesátých letech obětí komunistické perzekuce a krátce na to umírá ve vězení.
Hana Kučerová-Záveská
titulní strana z původní stavební dokumentace
původní dokumentace a plán z výstavního katalogu, 1932