Dům Pavla Janáka

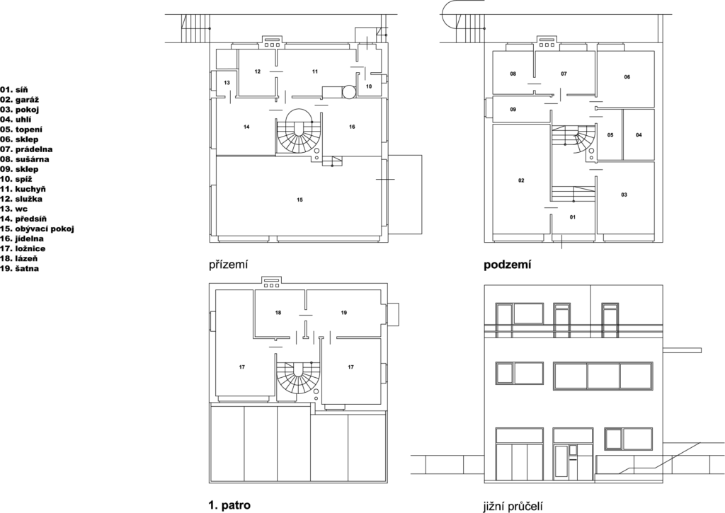
V návrhu své vlastní vily realizoval dokonalý terasově stupňovitý kubus s vřetenovým schodištěm uprostřed, silně inspirovaný prostorovým plánem  architekta Adolfa Loose. Ale do dokonalosti konceptu a vize se někdy vloudí  praktická chyba, takže perličkou Janákovy vily byl fakt, že u věhlasného funkcionalistického architekta  v jeho vlastním domě nešlo otevřít okno kvůli umístění trubek topení. Paní Janáková vilu po smrti svého manžela v roce 1956 záhy prodala. V sedmdesátých letech byla nevhodně přistavěna garáž. V současnosti je dům po rekonstrukci.

Architekt

Pavel Janák

(*1882 Praha +1956 Praha)

Architekt, urbanista, návrhář nábytku a dekorativních předmětů, profesor Uměleckoprůmyslové školy a teoretik architektury. Studoval na české a německé technice v Praze i na Kunstakademii ve Vídni. Pracoval s Josefem Gočárem v atelieru Jana Kotěry. Jeho tvorba má několik zřetelných fází: první období, kdy se uvědoměle rozhoduje pro modernismus, pak se stává čelním představitelem českého kubismu, následně prošel obdobím snah o národní sloh, aby se nakonec naplno věnoval funkcionalismu. Byl dlouhodobým předsedou SČSD, hlavním iniciátorem funkcionalistické výstavby na Babě a autorem jejího urbanistického plánu. Na Babě je autorem domu Dovolil a svého vlastního domu.

1899-1905
studium architektury na ČVUT v Praze
1902-1903
studium na Německé vysoké škole technické v Praze
1906-1907
studium na Akademii výtvarných umění ve Vídni u Otto Wagnera
1907-1908
spolupráce v ateliéru prof. Jana Kotěry v Praze, studijní cesty do Itálie
1908
členem SVU Mánes
1909-1910
zaměstnán ve stavebním oddělení Magistrátu hl.města Prahy
1911
samostatný architekt v Praze
člen Skupiny výtvarných umělců v Praze
1912
spozukladatel Pražských uměleckých dílen (PUD)
1914-1918
vojenská služba
1919
státní zkouška na České vysoké škole technické v Praze
1921
Profesor na Uměleckoprůmyslové školy v Praze
člen České akademie věd a umění
1924-1945
předseda Svazu československého díla (SČSD)
1935
korespondujícím členem Akademie architektury v Moskvě
1936-1956
architektem Pražského hradu

Významné realizace
 
1909-1910
Hlávkův most v Praze
1911
Rodinný dům Jakubec, Jičín
1912-1913
přestavba domu Dr. Fáry, Pelhřimov
1913-1914
jez na řece Labe, Předměřice 1
1914
Vila Pick, Ljubljana
1922
krematorium, Pardubice
1922-1924
Riunione adriatica di Sicurta, Praha – Nové Město (s Josefem Zasche)
1923-1924
umělecká kolonie (vily J. Bendy, B. Kafky, E. Filly a V. Beneše), Praha – Ořechovka
1924-1926
správní palác Škoda, Praha – Nové Město
Autoklub, Praha – Nové Město
1924-1928
Libeňský most, Praha
1925-1934
rekonstrukce a přístavba Černínského paláce, Praha – Hradčany
1927
letiště, Mariánské Lázně
1927-1928
Pavilon Uměleckoprůmyslové školy na Zemském výstavišti, Brno
1927-1929
blok družstevních domů, Praha – Dejvice

1929-1932
regulační plán výstavní osady Baba, Praha – Dejvice

1932
rodinný dům Pavly a Václava Lindových, rodinný dům ing. Karla Dovolila 

1932 vlastní rodinný dům, Baba, Praha – Dejvice 

1932
Hotel Juliš, Praha – Nové Město
Sbor československé církve husitské, Praha – Vinohrady
1934-1935
vila s ateliérem sochaře Josefa Mařatky, Praha – Střešovice
1948-1950
renovace Jízdárny, přístavba garáží a terasy, Pražský hrad
1950
renovace Míčovny, Pražský hrad

Majitel

Pavel Janák

Významný architekt, urbanista, člen Státní regulační komise, profesor na Uměleckoprůmyslové škole v Praze, spoluzakladatel sdružení Artěl, hlavní architekt Pražského hradu, autor bohaté publikační činnosti a jeden z čelních představitelů českého Werkbundu. Pavel Janák (1882-1956) stál v čele Svazu československého díla ve druhé polovině dvacátých let, kdy se stal hlavním iniciátorem funkcionalistické výstavby na Babě a zároveň autorem její urbanistické studie.