the Munk House, original state (south façade with stairs to the terrace)
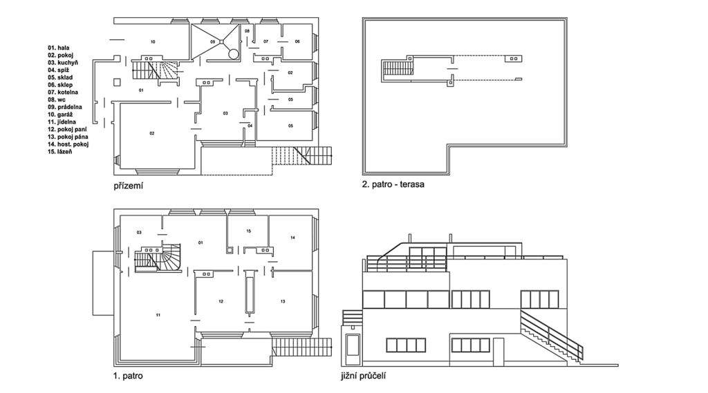
The public’s attention was already directed to the first house on the Baba estate, commissioned by František and Naděžda Munk and designed by the co-author of the Trade Fair Palace, Josef Fuchs, in cooperation with Munk’s nephew Otokar Fischel. The family’s living areas are atypically situated in a raised overhanging cube with enlarged sliding window panes forming a sliding strip. The terrace and hanging stairs connect the living floor with the garden.
František and Naďa Munk
Ing. František Munk (1901-1999) excelled as a diplomat, skilful manager, and businessman. His language skills helped him to become the director of the Prague Sample Fairs until his business-related departure to the USA in 1931. Upon his return from the US, he and his wife Naďa moved into the villa in Baba. The Munks and their children had to leave their house under dramatic circumstances after the 1939 occupation, as Suzanne Munk Ragen describes in her text “The house in Baba where I was born.” The Nazis confiscated the house as Jewish property. With foresight, Frank Munk sold it after returning from emigration in 1947 before returning abroad. The Munk siblings still live in the US and are always welcome to visit the current homeowners.
Michael Munk on the terrace of the house in Baba, October 2019
Michael Munk on the stairs leading up to the house in Baba, 1937
Michael Munk (left) and his sister Suzanne Munk Ragen (right) with the current owners in front of the house in Baba, October 2019
the Munks on the future construction site in the Baba estate, 1932
František Munk on the terrace of his home in Baba, 1932
original interior of the living room
Josef Fuchs
Otokar Fischel
title page of the construction permit
original documentation and plans from the exhibition catalogue