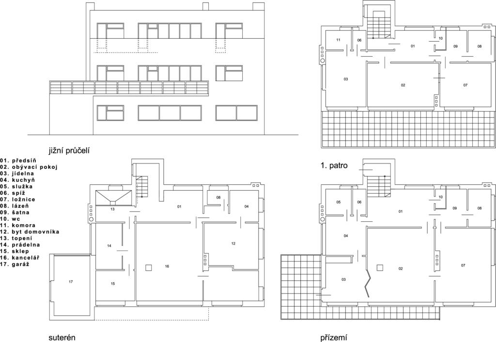
Pavel Janák navrhl pro svého přítele, velkého podporovatele funkcionalismu, Karla Dovolila a jeho rodiče dvougenerační rodinný dům. Skvěle využil spád terénu k umístění zázemí domu, investorovy kanceláře a malého bytu pro domovníka. Střecha oddělené garáže je zároveň terasou navazující na balkon pokoje. Tuto terasu pomocí ocelového schodiště propojil se zahradou. Uliční průčelí má na rozdíl od ostatních domů okna.
Architekt, urbanista, návrhář nábytku a dekorativních předmětů, profesor Uměleckoprůmyslové školy a teoretik architektury. Studoval na české a německé technice v Praze i na Kunstakademii ve Vídni. Pracoval s Josefem Gočárem v atelieru Jana Kotěry. Jeho tvorba má několik zřetelných fází: první období, kdy se uvědoměle rozhoduje pro modernismus, pak se stává čelním představitelem českého kubismu, následně prošel obdobím snah o národní sloh, aby se nakonec naplno věnoval funkcionalismu. Byl dlouhodobým předsedou SČSD, hlavním iniciátorem funkcionalistické výstavby na Babě a autorem jejího urbanistického plánu. Na Babě je autorem domu Dovolil a svého vlastního domu.
1899-1905
studium architektury na ČVUT v Praze
1902-1903
studium na Německé vysoké škole technické v Praze
1906-1907
studium na Akademii výtvarných umění ve Vídni u Otto Wagnera
1907-1908
spolupráce v ateliéru prof. Jana Kotěry v Praze, studijní cesty do Itálie
1908
členem SVU Mánes
1909-1910
zaměstnán ve stavebním oddělení Magistrátu hl.města Prahy
1911
samostatný architekt v Praze
člen Skupiny výtvarných umělců v Praze
1912
spozukladatel Pražských uměleckých dílen (PUD)
1914-1918
vojenská služba
1919
státní zkouška na České vysoké škole technické v Praze
1921
Profesor na Uměleckoprůmyslové školy v Praze
člen České akademie věd a umění
1924-1945
předseda Svazu československého díla (SČSD)
1935
korespondujícím členem Akademie architektury v Moskvě
1936-1956
architektem Pražského hradu
Významné realizace
1909-1910
Hlávkův most v Praze
1911
Rodinný dům Jakubec, Jičín
1912-1913
přestavba domu Dr. Fáry, Pelhřimov
1913-1914
jez na řece Labe, Předměřice 1
1914
Vila Pick, Ljubljana
1922
krematorium, Pardubice
1922-1924
Riunione adriatica di Sicurta, Praha – Nové Město (s Josefem Zasche)
1923-1924
umělecká kolonie (vily J. Bendy, B. Kafky, E. Filly a V. Beneše), Praha – Ořechovka
1924-1926
správní palác Škoda, Praha – Nové Město
Autoklub, Praha – Nové Město
1924-1928
Libeňský most, Praha
1925-1934
rekonstrukce a přístavba Černínského paláce, Praha – Hradčany
1927
letiště, Mariánské Lázně
1927-1928
Pavilon Uměleckoprůmyslové školy na Zemském výstavišti, Brno
1927-1929
blok družstevních domů, Praha – Dejvice
1929-1932
regulační plán výstavní osady Baba, Praha – Dejvice
1932
rodinný dům Pavly a Václava Lindových, rodinný dům ing. Karla Dovolila
1932 vlastní rodinný dům, Baba, Praha – Dejvice
1932
Hotel Juliš, Praha – Nové Město
Sbor československé církve husitské, Praha – Vinohrady
1934-1935
vila s ateliérem sochaře Josefa Mařatky, Praha – Střešovice
1948-1950
renovace Jízdárny, přístavba garáží a terasy, Pražský hrad
1950
renovace Míčovny, Pražský hrad

V roce 1932 se ing. Karel Dovolil (1899-1955) nastěhoval do svého domu s manželkou Jarmilou a první dcerou Jarmilou. Paní Jarmila byla ženou na tehdejší dobu odvážnou a akční. Funkcionalistické okno do kuchyně se jí zdálo světelně nedostačující, a tak se navzdory Janákovu návrhu domluvila s řemeslníky na zvětšení okna, čímž překvapila po návratu z práce i svého muže. Věhlasného architekta se toto praktické ženské rozhodnutí velmi dotklo. V protektorátu musel Karel Dovolil podobně jako další obyvatelé vil židovského původu čelit nejen šikaně ze strany nechvalně proslulého obyvatele Baby, českého nacisty Bautze, ale musel uzavřít i svou inženýrskou kancelář. Až do znárodnění pracoval u svého švagra v jeho papírenské firmě. V svém podnikání pokračovat nadále nesměl. Pracoval jako vodohospodář ve VODOTECHNĚ až do své náhlé smrti. Dcera Jarmila se svou sestrou Hanou stále obývají tento jedinečný dvougenerační dům na Babě.