Dům Karla Ballinga

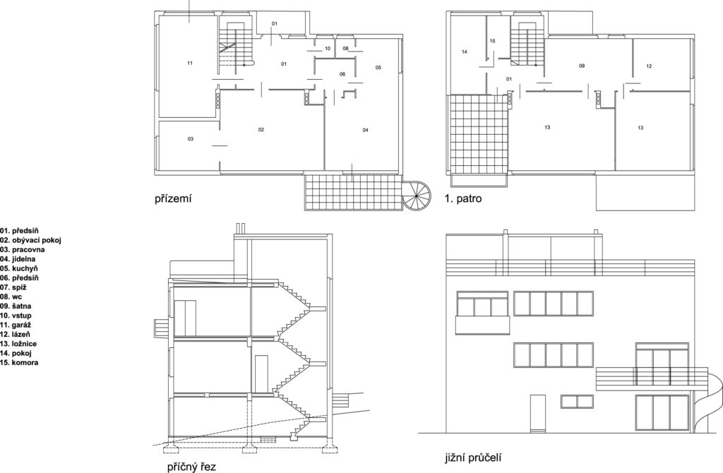
Hana Kučerová-Záveská a její první realizace ze dvou rodinných domů na Babě byla pro pro Karla Ballinga. Vila jasně charakterizuje její představu o individuálním bydlení rodiny s dětmi ze střední třídy. Byla velkou propagátorkou  racionálního bydlení s důrazem na hygienu a bezpečnost včetně moderních vymožeností jako plynové a elektrické sporáky, které ženám umožňují co nejefektivněji usnadnit práci. Vymožeností domu byl i výtah na jídlo a domácí telefon. Uspořádání domu Balling – v přízemí pracovna, obytný pokoj a jídelní kout spojený prosklenou stěnou a schodištěm se zahradou. První ložnicové patro bylo vybaveno šatním zázemím a nárožní zimní zahradou. Střecha je koncipována jako sluneční terasa. Bohužel dům Balling a dům Suk byly jedinými realizacemi nadané architekty a designérky, které za svůj krátký život stihla.

Architekt

Hana Kučerová-Záveská

(*1904 Praha +1944 Stockholm)

Architektka, publicistka a progresivní návrhářka nábytku a interiérů, žákyně Pavla Janáka na Uměleckoprůmyslové škole. Jako členka SČSD se hlásí se k programu moderní architektury: účelnost půdorysu, nábytek jednoduchý, pohodlný a cenově přístupný, osvobození ženy od zbytečných prací v domácnosti. Začala úspěšně spolupracovat s družstvem Artěl a s nábytkářskou firmou Spojené uměleckoprůmyslové závody (UP) v Brně. Její nábytek pro Barrandovské terasy (1929) byl později řadu let vyráběn sériově. Architektonické realizace stihla za života jen dvě-dům Balling a dům Suk, oba na pražské Babě. Zemřela ve čtyřiceti letech ve Stockholmu, kde žila se svým mužem, československým velvyslancem Dr. Vladimírem Kučerou.

1922-1927
studium architektury na Uměleckoprůmyslové škole v Praze u prof. Karla Štípla, prof. Josefa Mařatky a prof. Pavla Janáka
1928-1937
samostatná architektka a designérka v Praze
1937 
architektka ve Stockholmu, kde byl její manžel Jaroslav Kučera velvyslancem

Významné realizce
 
1928
terasy restaurace na Barrandově, Praha

1932 rodinný dům Karla Ballinga, rodinný dům Antonie a Václava Sukových, Baba, Praha-Dejvice

standardní typová kuchyně pro Zenobii Vítězovou, Přerov
řada bytových zařízení a realizací pro soukromé klienty
1933
účast na výstavě Svazu československého díla  (SČSD) „Byt” v Praze
1934
rodinný dům, Dobřichovice

Majitel

Karel Balling

Hudební skladatel Karel Balling (1889 -1972) patřil k hlavním tvářím legendárního kabaretu Červená sedma. Skládal scénickou hudbu pro Vinohradské divadlo a napsal spoustu populárních tanečních skladeb pro kabarety v Lucerně a Rokoku. Od roku 1922 byl vrchním ředitelem v Ochranném sdružení autorském. Sestavil a napsal první české příručky Škola hry na banjo a ukulele.